
31 Butler Road
Scarsdale, NY 10583
Property Description
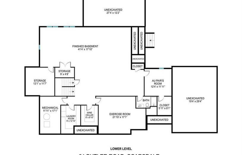
This to be built modern sprawling colonial awaits a buyer who is looking to customize a house with a great open floor plan, convenience, space and a prime location in the heart of Fox Meadow on a half acre with a 3 car garage. Enter into a double story foyer and enjoy entertaining in this center hall colonial with connectivity to every room. The open kitchen and family room provides the ideal flow for every day living. Enjoy BBQing on an elevated patio overlooking the expansive yard with room for a pool. A home office, first floor bedroom and full bathroom and generous mudroom leading to the 3 car garage round out the first floor. The ideal primary suite features a tray ceiling and gas fireplace and contains large walk in closets and a dreamy primary bathroom. The other 3 family bedrooms offer ensuite bathrooms and spacious walk in closets. Laundry rooms are present on both the second floor and the lower level. The full basement contains a bedroom and full bath along with ample play areas, a gym, future wine cellar, and a perfect amount of storage. With easy access to schools, fields, playgrounds, town, train, library, shops and more, this A+ location cannot be beat.
Bedrooms
6
Levels
3
Bathrooms
7
Built Year
2023
Sqft
8,468
Location
Scarsdale, NY 10583





